Single Curb Shower Pan Kits
Ready to tile shower pans and shower bases

Bathroom renovations can often be costly and time consuming, but you can alleviate some of that time and cost by installing one of these useful, convenient shower trays.These fantastic time saving shower pans are fabricated as one piece with a fully integrated curb and drain; you set the tile directly on the surface of the shower pan which can save you a considerable amount in labor costs. The integrated curb and drain provide superior leak protection as they are seamless and don't have to be fabricated on-site. These shower trays install in as little as 30 minutes due to the fact that they don't require you to mud and pitch the shower base's floor or frame the shower base's curb which can be very difficult. Beautiful designer drain covers are also available to match the look of your re-styled bathroom. If you're looking for a shower tray with time saving installation features and superior leak protection, you've come to the right place.
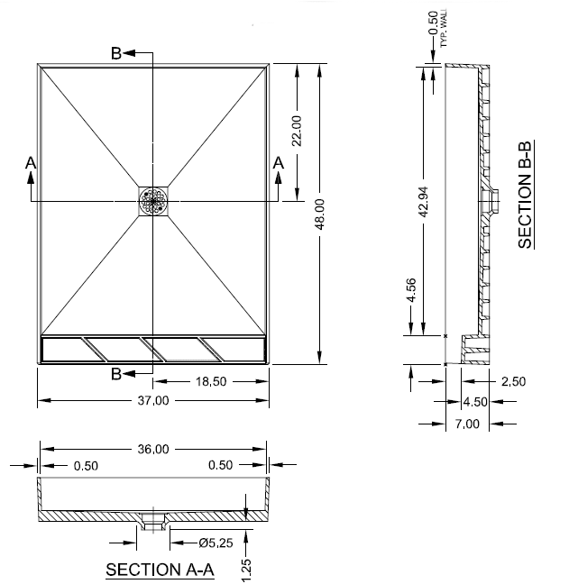
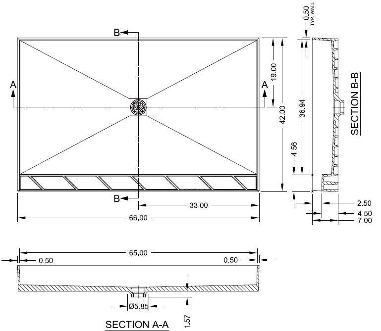
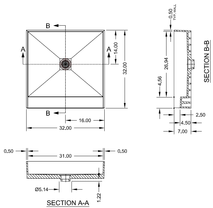
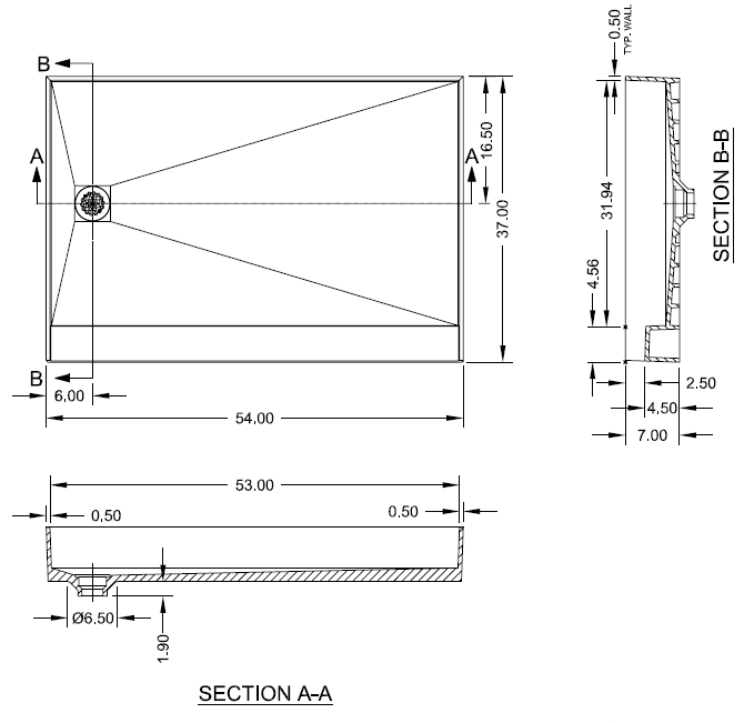
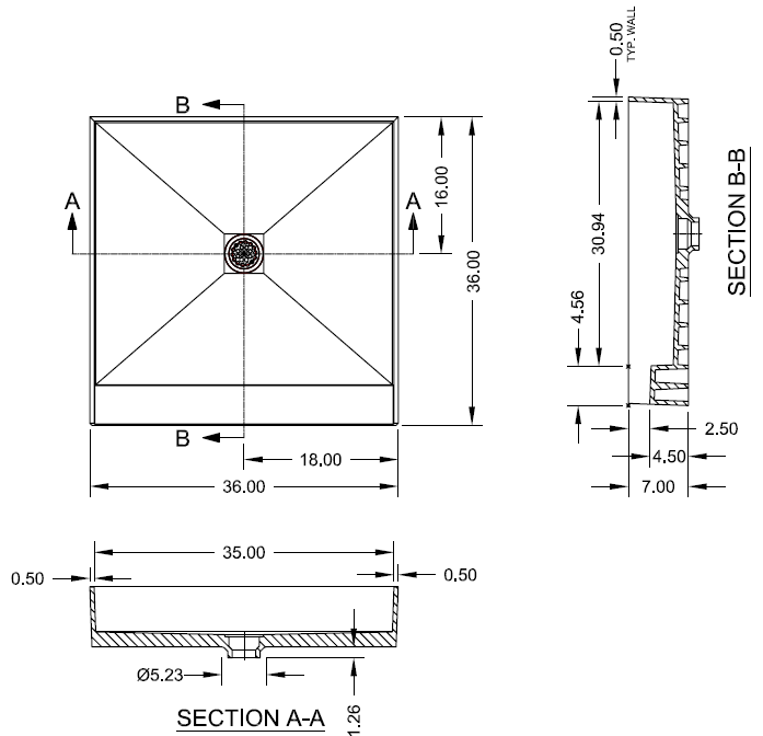
single curb shower pan top viewTop View - Center Drain Model

single curb shower pan bottom viewBottom View - Center Drain Model
finished showerpanFinished Shower Example - Center Drain Model
These ready-to-install tile pans feature:
  • No time consuming mud setting or hot mopping required - tiles can be set directly on the pan surface which saves on labor costs
  • Integrated curb with structural ribbing for superior durability
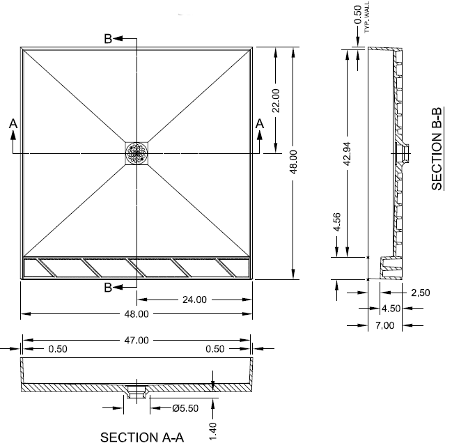
  • Center, left and right drain configurations allow greater flexibility for installation
  • Round polished chrome adjustable drain plate for stunning looks
  • Includes 2" PVC drain with adjustable height (1" maximum adjustment) by simply twisting it until it is at the desired height
  • 6" splash walls to provide top of the line water protection
  • 1/4" per foot pre-pitched floor to assure no pockets of standing water
  • UL listed -- View installation guide

Shower Pan with Left Drain
Shower Pan with Center Drain
Shower Pan with Right Drain
- OR - View Cart

Optional Accessories

Waterproofing flashing
Redi Flash® Waterproofing System - Aluminum - 30" x 60" - $104.52
  • Pre-formed aluminum flashing provides a waterproof barrier
  • Fits all 30″D x 60″W shower base models (view dimension drawing)
  • Contains 3 pre-cut lengths; one piece for the backsplash and two pieces for the side walls
Square drain trim ring in Chrome
Square Trim Ring ONLY - Chrome - $28.58
  • Designed to fit around the round drain strainer that is included with each shower pan
  • Creates a square drain look that is easy to tile around
polished chrome drain cover
Drain Cover with Square Trim Ring - 
  • Includes: 1 each square trim ring (5-3/4" O.D. x 4-5/16" I.D.(round) x 1/8" thick) and 1 each 4-1/4" outside diameter round strainer grill with 2-5/8" center to center screw holes
  • Finish matching machine screws and finish matching self-tapping screws are included
  • A variety of designer finishes are available to complement your faucet and other accessories
  • View dimensions

Please note: Finishes viewed on computer monitors may differ from actual product finish, depending on monitor settings.
These drain covers currently ship in 7-10 business days. If time is an issue, please contact us prior to ordering.

- OR - View Cart

Related Items & Accessories



Frequently Asked Questions

Q. "Can these shower pans be installed even if there is no access from the subfloor?"
A. If there is no access from the subfloor below these units, they can still be installed. During installation make sure the drainpipe stubbed up from the subfloor is adjusted to a height sufficient to fit properly into the shower pan drain connection.

Q. "I want to install some tile that is thicker than average. Since the drain is pre-installed is there anyway to adjust the drain height?"
A. The pre-installed drain can accommodate tile up to 1" thick and is adjustable by simply twisting the drain until it is at the appropriate height.

Q. "What's the difference between 'single curb' and 'barrier free' shower pans?"
A. Barrier free shower pans do not include the integrated curb to allow easy access for people in wheel chairs or any one with limited mobility.

Q. "Where are these shower pans installed?"
A. These shower pans are installed in 5 star hotels, casino hotels, high end condos, single family residences, student dorms, hospitals, nursing homes, new construction and renovations. The time saving features and ease of installation make these complete shower pans kits the idea choice.

Q. "What does UL listed mean?"
A. When something is UL-listed it means that the Underwriters Laboratories has tested the device, and it meets their requirements for safety when properly installed.

Q. "What type of material are these shower pans made of?"
A. These shower pans are made of BAYDUR 645, which is a polyurethane manufactured by Bayer Material Science.

Q. "How do I determine if I need a left or right side shower drain?"
A. A left or right side drain is determined by what side the drain will be if you are facing the shower as if you were going to enter it.

Q. "Can these shower pan kits be installed without the square trim plate?"
A. Yes the shower pan kits can be installed without the square trim plate. The square trim plate is an added feature which can save you time tiling the shower pan. With the tile square you won't need to make those tricky curved cuts to make the tile fit around the drain.

Q. "What is the difference between a shower pan and a shower base?"
A. Shower pan and shower base are two different terms that both refer to the same type of product.

Q. "What does "PVD" polished brass mean?"
A. PVD stands for "Physical Vapor Deposition" which is a modern plating process used in faucet manufacturing. Vaporized zirconium reacts with nitrogen and other gases to form a VERY durable plated surface. Unlike polished brass finishes in the past that would easily tarnish over time, polished brass finishes with PVD are extremely durable and won't generally tarnish or discolor.

Q. "How thick is the polyurethane these pans are made of?"
A. These ready to tile shower pans are made of 1/2" thick BAYDUR 645 polyurethane.

Q. "Will these shower pans flex and crack my tile?"
A. As with almost every shower pan on the market these shower pans can have some flex though with proper installation the pan should be completely rigid keeping your tiles safe.

Q. "Are tiles included with these tile-ready shower pan kits?"
A. Since you can choose any tile you would like for your shower, they are not included with these shower pan kits. Tiles are very heavy/bulky and are better to be purchased locally.


return to top ↑

Copyright© 1995-2025 PlumbingSupply.com.
All Rights Reserved.