ADA Compliant Barrier Free Shower Pan Kits
Ready-to-tile shower pans for handicap access

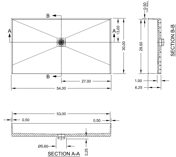
These fantastic time saving, ADA compliant shower pans are fabricated as one piece with a fully integrated curb and drain; you set the tile directly on the surface of the shower pan which can save you a considerable amount in labor costs. The integrated curb and drain provide superior leak protection as they are seamless and don't have to be fabricated on-site. These shower trays install in as little as 30 minutes due to the fact that they don't require you to mud and pitch the shower base's floor or frame the shower base's curb which can be very difficult. Beautiful designer drain covers are also available to match the look of your re-styled bathroom. If you're looking for a shower tray with time saving installation features and superior leak protection, you've come to the right place.
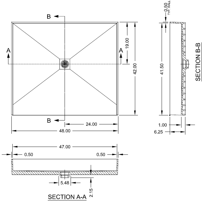
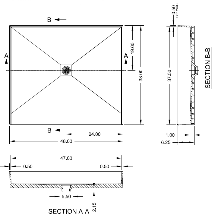
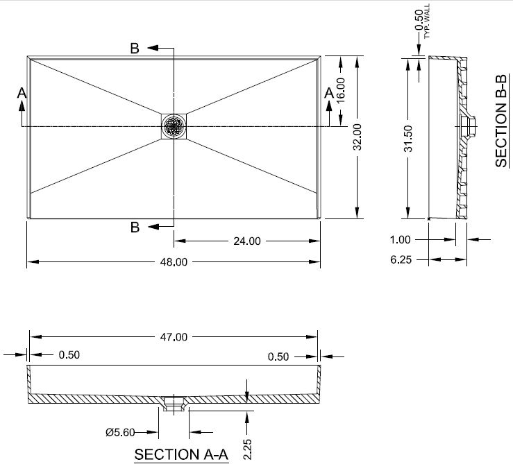
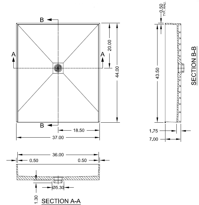
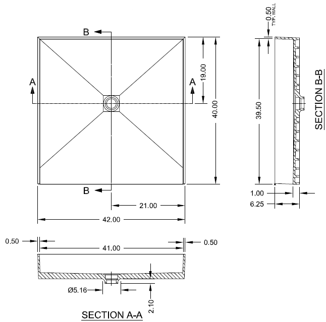
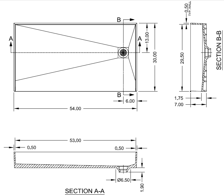
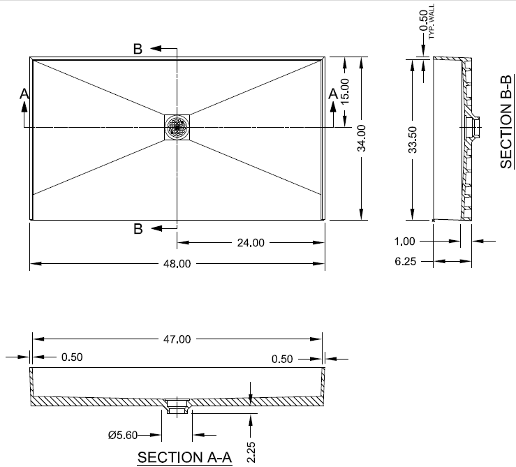
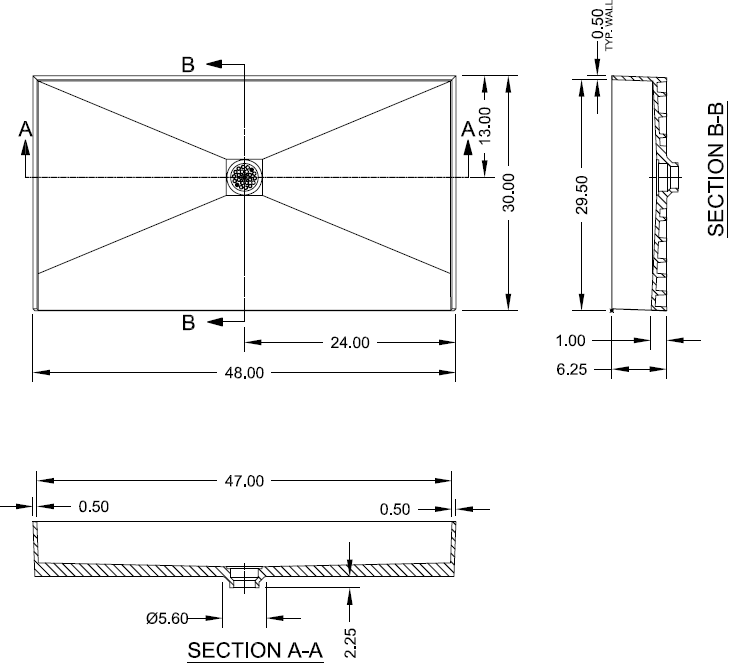
image of barrier free shower pan - top view
Top View - Center Drain Model
image of barrier free curb shower pan - bottom view
Bottom View - Center Drain Model
These tile-ready shower pans feature:
  • Easy access for those in wheelchairs or with disabilities
  • No time consuming mud setting or hot mopping required
  • Tiles can be set directly on the pan surface to save on labor costs
  • Barrier-free, roll-in design with structural ribbing for superior durability and access
  • Your choice of center, left and right drain configurations allow greater flexibility for installation
  • Round polished chrome adjustable drain plate for stunning looks
  • 2" PVC drain with adjustable height included and installed for considerable time savings
  • The drain height is adjustable (1" max adjustment) by simply twisting
  • Includes shower pan and one round chrome drain strainer (square tile/trim ring available separately)
  • 6" splash walls to provide top of the line water protection
  • 1/4" per foot pre-pitched floor to assure no pockets of standing water
  • ADA compliant when installed per the manufacturer's specifications
  • UL listed; IAPMO/1ANSI Z124.1.2 (2005), ASTM F 462, ICC/ANSI A117, ICC/ANSI A117.1
  • View installation guide
Shower Pan with Left Drain
Shower Pan with Center Drain
Shower Pan with Right Drain
- OR - View Cart

Optional Accessories

Waterproofing flashing
Redi Flash® Waterproofing System - Aluminum - 30" x 60" - $104.52
  • Pre-formed aluminum flashing provides a waterproof barrier
  • Fits all 30″D x 60″W shower base models (view dimension drawing)
  • Contains 3 pre-cut lengths; one piece for the backsplash and two pieces for the side walls
Square drain trim ring in Chrome
Square Trim Ring ONLY - Chrome - $28.58
  • Designed to fit around the round drain strainer that is included with each shower pan
  • Creates a square drain look that is easy to tile around
polished chrome drain cover
Drain Cover with Square Trim Ring - 
  • Includes: 1 each square trim ring (5-3/4" O.D. x 4-5/16" I.D.(round) x 1/8" thick) and 1 each 4-1/4" outside diameter round strainer grill with 2-5/8" center to center screw holes
  • Finish matching machine screws and finish matching self-tapping screws are included
  • A variety of designer finishes are available to complement your faucet and other accessories
  • View dimensions

Please note: Finishes viewed on computer monitors may differ from actual product finish, depending on monitor settings.
These drain covers currently ship in 7-10 business days. If time is an issue, please contact us prior to ordering.

- OR - View Cart

Related Items & Accessories



Frequently Asked Questions

Q. "Can these shower pans be installed even if there is no access from the subfloor?"
A. If there is no access from the subfloor below these units, they can still be installed. During installation make sure the drainpipe stubbed up from the subfloor is adjusted to a height sufficient to fit properly into the shower pan drain connection.

Q. "I want to install some tile that is thicker than average. Since the drain is pre-installed is there anyway to adjust the drain height?"
A. The pre-installed drain can accommodate tile flooring up to 1" thick and is adjustable by simply twisting the drain until it is at the appropriate height.

Q. "What's the difference between 'single curb' and 'barrier free' shower pans?"
A. Barrier free shower pans do not include the integrated curb to allow easy access for people in wheel chairs or any one with limited mobility.

Q. "Where are these shower pans installed?"
A. These shower pans are installed in 5 star hotels, casino hotels, high end condos, single family residences, student dorms, hospitals, nursing homes, new construction and renovations. The time saving features and ease of installation make these ADA shower pan kits the ideal choice.

Q. "What does UL listed mean?"
A. When something is UL-listed it means that the Underwriters Laboratories has tested the device, and it meets their requirements for safety when properly installed.

Q. "What type of material are these shower pans made of?"
A. These shower pans are made of BAYDUR 645, which is a polyurethane manufactured by Bayer Material Science.

Q. "Can these ADA shower pan kits be installed without the square trim ring?"
A. Yes the ADA shower pan kits can be installed without the square trim ring. The square trim ring is an added feature which can save you time tiling the shower pan. With the square trim ring you won't need to make those tricky curved cuts to make the tile fit around the drain.

Q. "What is the difference between a shower pan and a shower base?"
A. Shower pan and shower base are two different terms that both refer to the same type of product.

Q. "What does "PVD" polished brass mean?"
A. PVD stands for "Physical Vapor Deposition" which is a modern plating process used in faucet manufacturing. Vaporized zirconium reacts with nitrogen and other gases to form a VERY durable plated surface. Unlike polished brass finishes in the past that would easily tarnish over time, polished brass finishes with PVD are extremely durable and won't generally tarnish or discolor.

Q. "How thick is the polyurethane these pans are made of?"
A. These ready to tile shower pans are made of 1/2" thick BAYDUR 645 polyurethane.

Q. "Will these shower pans flex and crack my tile?"
A. As with almost every shower pan on the market these shower pans can have some flex though with proper installation the pan should be completely rigid keeping your tiles safe.

Q. "Are tiles included with these tile-ready shower pan kits?"
A. Since you can choose any tile you would like for your shower, they are not included with these shower pan kits. Tiles are very heavy/bulky and are better to be purchased locally.

Q. "Can I install these shower pans over an existing shower installation?"
A. These shower pans are designed to be installed over plywood or concrete. If replacing a leaky shower pan, remove all material down to the subfloor (and replace the subfloor if needed) before installing this shower pan.

Q. "What does 'ADA Compliant' mean?"
A. Complies with the Americans with Disabilities Act (ADA) of 1990. The Americans with Disabilities Act of 1990 is a comprehensive civil rights act for people with disabilities. On July 26, 1990, President George H.W. Bush signed the ADA into law as wide-ranging legislation intended to make American society more accessible to people with disabilities and to prohibit discrimination on the basis of disability. The ADA was built primarily due to the desire of individuals with disabilities to work toward their goal of full participation in American society, and effects the ADA may have on businesses include restructuring or altering the layout of a building, modifying equipment, and removing barriers.


return to top ↑

Copyright© 1995-2025 PlumbingSupply.com.
All Rights Reserved.