Showeroff® Metering Shower Systems
by Symmons Industries

Symmons Showeroff metering showers installed in commercial shower stalls
Showeroff® metering shower valves and systems from Symmons are ideal for public showers, detention facilities or any shower application where there is a need to positively control shower water usage. Put a stop to wasted water from showers not getting turned completely off; install a metering shower and conserve water and save money.

Symmons Showeroff Concealed Metering Shower System

Symmons 3-310 concealed metering shower system
This shower system features:
  • Provides shower for approximately 45 seconds (adjustable run time) and then completely shuts itself off
  • Cycle can be repeated indefinitely, but the shower will never be left running
  • Push button to start shower
  • Concealed metering shower valve with integral stop
  • Institutional showerhead with adjustable spray & 30° spray angle
  • Vandal resistant hex socket type mounting fasteners for valve and showerhead
  • Cold or tempered 1/2" water supply
  • Comes in an attractive chrome finish
  • CEC compliant and WaterSense certified 1.5 GPM flow rate
Model Description Valve Price & Quantity
3-320 For Thin Wall - 1/2" IPS Top/Bottom Connection
- View dimensions
4-428 $797.87
3-325 For Thin Wall - 1/2" Sweat Top/Bottom Connection
- View dimensions
4-420 $734.76
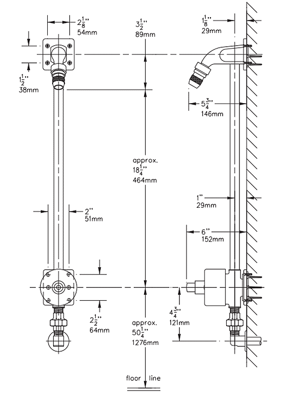
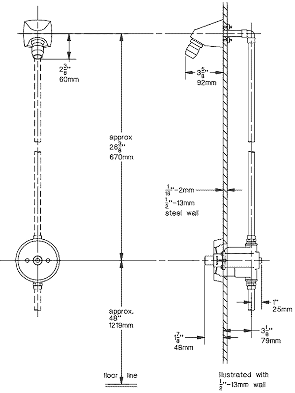
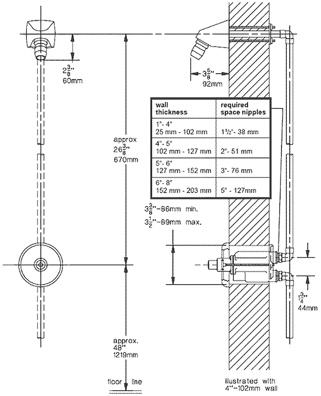
3-310 For Thick Wall - 1/2" IPS Back Connection
- View dimensions
4-427 $830.33
- OR - View Cart

Depending on the thickness of your wall, you may need nipples for installation:
to brass nipples - to stainless steel nipples - to galvanized nipples


Symmons Showeroff Concealed Metering Shower Systems with Rear Mounting Plate

Symmons concealed metering shower system with rear mounting
This shower system features:
  • Provides shower for approximately 45 seconds (adjustable run time) and then completely shuts itself off
  • Cycle can be repeated indefinitely, but the shower will never be left running
  • Push button to start shower
  • Concealed metering shower valve with integral stop
  • Institutional showerhead with adjustable spray & 30° spray angle
  • Vandal resistant hex socket type mounting fasteners for showerhead
  • Escutcheon with rear mounting plate & thru bolts for extra thick wall
  • Cold or tempered 1/2" water supply
  • Comes in an attractive chrome finish
  • CEC compliant and WaterSense certified 1.5 GPM flow rate
Model Description Valve Price & Quantity
3-310-R For Thick Wall - 1/2" IPS Back Connection
- View dimensions
4-427-R $838.36
- OR - View Cart

Depending on the thickness of your wall, you may need nipples for installation:
to brass nipples - to stainless steel nipples - to galvanized nipples


Symmons Showeroff Exposed Metering Shower System

Please note: Due to state mandated low-flow regulations, these showers cannot be shipped to Colorado.
Symmons exposed metering shower system
This shower system features:
  • Provides shower for approximately 45 seconds (adjustable run time) and then completely shuts itself off
  • Cycle can be repeated indefinitely, but the shower will never be left running
  • Push button to start shower
  • Exposed metering shower valve with integral stop
  • Includes wall flange, union & street ell with escutcheon
  • Institutional showerhead with adjustable spray
  • 20" head riser with extended head bracket
  • Cold or tempered 1/2" water supply
  • Comes in an attractive chrome finish
  • CEC compliant 1.5 GPM flow rate
  • View Exposed Showeroff 3-330 Meter dimensions
3-330 Exposed Shower - $1,219.34
- OR - View Cart

Symmons Showeroff Metering Valves

Showeroff® Metering Shower Valves

SHOWEROFF metering shower valves and systems from Symmons provide a positive solution to the issues of water waste and hot water energy savings. A durable, piston-actuated metering shower valve, SHOWEROFF provides a full shower flow for approximately 45 seconds (can vary with water temperature and pressure) and never forgets to shut itself off. The cycle can be repeated indefinitely, but the shower can not be left running. Ideal for public showers, detention facilities or any shower application where there is a need to positively control shower water usage. As a single supply metering valve, SHOWEROFF can be supplied with a single cold or tempered water supply line.

Model
(click for image)
Description Price & Quantity
4-420 Concealed Shower Valve with Integral Stop & 1/2" Sweat Connections - view 4-420 dimensions $492.20
4-425 Exposed Shower Valve with Integral Stop & Wall Flange - view 4-425 dimensions $677.55
4-427 Concealed Shower Valve with Integral Stop & 1/2" IPS Back Connections - view 4-427 dimensions $540.70
4-427-R Concealed Shower Valve with Integral Stop, 1/2" IPS Back Connections & Rear Mounting Escutcheon - view 4-427-R dimensions $573.16
4-428 Concealed Shower Valve with Integral Stop for Thin Wall & 1/2" IPS Connections - view 4-428 dimensions $572.88
4-428-R Concealed Shower Valve with Integral Stop for Thin Wall, 1/2" IPS Connections & Rear Mounting Escutcheon - view 4-428-R dimensions $588.96
- OR - View Cart

Related Items & Accessories



Frequently Asked Questions

Q. "Do these valves require hot and cold water lines?"
A. As a single supply metering valve, Showeroff® can be supplied with a single cold water supply line or, when using a thermostatic mixing valve, can be supplied with tempered water.

Q. "How long do these showers stay on?"
A. Showeroff® provides a full shower flow for approximately 45 seconds, and never forgets to shut itself off. The cycle can be repeated indefinitely, but the shower can not be left running. Ideal for public showers, detention facilities or any shower application where there is a need to positively control shower water usage.

Q. "Can these Showeroff® metered shower systems be installed outdoors?"
A. The manufacturer does not recommend these for outdoor installation. For outdoor showers, click here.


return to top ↑

Copyright© 1995-2025 PlumbingSupply.com.
All Rights Reserved.