When you need a strong, dependable bench seat for the shower, PlumbingSupply.com
® is your source for shower, tub, and transfer benches. We offer a large variety of heavy-duty, stainless steel framed, folding shower, tub, and lavatory seats. From idea...to design...to tooling...to production, these American-made shower benches and seats offer the best selection for your handicap installations.
Seachrome Wall Mounted Bench-Style Shower Transfer Seats With Swing Down Legs
For the elderly, aged in place, handicapped and many others who face mobility challenges, getting in and out of a bathtub or shower can be a stressful and dangerous endeavor, but it doesn't have to be. These bench-style transfer seats
are the ultimate in comfort, safety and durability which makes them great for homes or hotels as well as rehabilitation, fitness and independent living centers. When the seat is lowered into the sitting position it is held in place
as the front swing-down legs automatically align with the rear support legs through the help of a guided stainless cross bar. Additionally, the seat locks when placed in the "closed" position.
Features:
- Functional, comfortable addition to any bathroom designed with disabled, mobility challenged or elderly people in mind
- Constructed from heavy duty 304-type 18-gauge stainless steel
- Durable frame and support legs can support up to 900lbs when installed properly
- Seat is held in place during sitting by the adjustable legs that reach the floor - guided cross bar for additional support
- Locks when placed in "closed" position to help prevent injury and save space
- Extends only 6" from the wall when not in use
- Available in a variety of materials to suit your facility needs
- Compliant with ADA regulations when the mounting height of the top of the open seat is 17" to 19" from the floor
- Proudly made in the USA

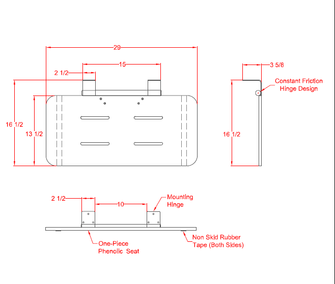
Model SSB2 - Shower Benches
with Swing Down Legs:
Due to the differences in installation surfaces (tile, wood, sheet rock, etc), mounting hardware (bolts/screws/anchors) is not included.
These seats currently have a 3-4 week lead time to ship.
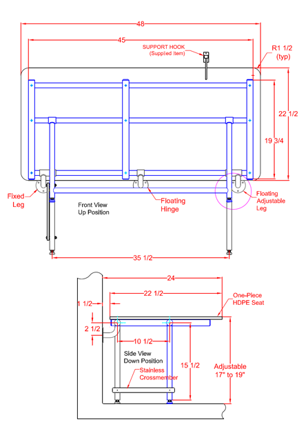
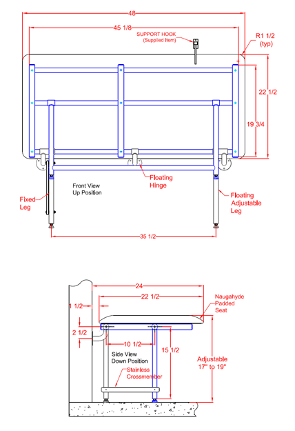
Seachrome Bariatric Bench Style Seats with Swing Down Legs Wall Mounted
Transferring in and out of the bathtub or shower can be a challenge for many oversized persons, but with a comfortable, sturdy shower bench showering becomes a relaxing, enjoyable experience again. Designed specifically with the needs
of bariatric individuals in mind, this bench style shower seat features swing down legs and offers superior safety and comfort for you or your loved one. Made from high quality stainless steel and durable phenolic, the seat can support
up to 1500 pounds and is available in white or teak finish to match most bathrooms. The legs lock securely when lowered with the aid of two guided cross bars and the 3" stainless steel leveling feet keep the seat firmly in place during
use.
Features:
- Allows safe transferring and showering for bariatric persons
- Super strong phenolic seat surface is comfortable, easy to clean, and will not support the growth of bacteria
- Highly durable 304-grade 18-gauge stainless steel wall-mounted frame, support legs, and 3" padded leveling feet can support up to 1500 lbs
- ADA compliant when the top of the open seat is installed 17" to 19" from the floor
- View detailed SBB3-360180 bariatric shower seat dimensions
- Proudly made in the USA

Due to the differences in installation surfaces (tile, wood, sheet rock, etc), mounting hardware (bolts/screws/anchors) is not included.
These seats currently have a 3-4 week lead time to ship.
36" x 18" Bariatric Bench Seat with Swing Down Legs:
Seachrome Wall Mounted
Bench-Style Shower Seats
Are you the friend, family member or care giver of an individual with a physical handicap who requires mobility assistance? Or do you yourself have a disability and are seeking more independence? We can help you make the transitioning
in and out of the shower or bath much easier with a fold up bench-style shower seat. These bench seats are made of a highly durable 304-grade 18-gauge stainless steel and a variety of surface materials, so you are sure to find one
that best suits your bathroom's decor.
Features:
- Provides a comfortable, safe seat in the shower without losing space
- Constructed from heavy duty 304-type 18-gauge stainless steel
- Durable frame can support up to 250lbs when installed properly
- Constant friction from the wall mounted bracket guides the "U-shaped" leg freely up and down, resulting in a low pressure spring action
- Locks when placed in "closed" position to help prevent injury and save space
- Sleek profile when in "up" or "closed" position, extending only 6" from the wall
- Available in a variety of materials to suit your facility needs
- Compliant with ADA regulations when the mounting height of the top of the open seat is 17" to 19" from the floor
- Proudly made in the USA

Model SSB - Shower Benches
Due to the differences in installation surfaces (tile, wood, sheet rock, etc), mounting hardware (bolts/screws/anchors) is not included.
These seats currently have a 3-4 week lead time to ship.
Seachrome L-Shaped Wall Mounted
Shower Transfer Seats
With Swing Down Legs
Do you have a friend or family member who requires assistance due mobility challenge such as arthritis, rheumatism, back pain or other common aches and pains? We offer a great solution: transfer benches that can help alleviate the danger
of injury and stress while bathing by offering a safe surface to transfer onto and also rest on.
Features:
- Made of a highly durable 304 grade 18 gauge stainless steel
- Sturdy frame and legs can support up to 900lbs when installed properly
- When in the "up" or "closed" position, seat locks into place
- Extends only 6" from the wall so it can be up and out of the way and it won't obstruct your friends and family while they shower
- Once the seat is lowered into the sitting position, it is held in place as the front swing-down legs automatically class with the rear support legs through the help of the stainless cross bar
- Available in both a left and right-hand orientation
- Compliant with ADA regulations when installed according to manufacturer's specifications
- Proudly made in the USA

We also offer
reversible L-shaped transfer benches that are perfect for healthcare facilities with a diverse population
Models SSL2 & SSR2 - L-Shaped Transfer Benches with Swing Down Legs
Due to the differences in installation surfaces (tile, wood, sheet rock, etc), mounting hardware (bolts/screws/anchors) is not included.
These seats currently have a 3-4 week lead time to ship.
Seachrome Wall Mounted L-Shaped Shower Seats
For those who have difficulty standing in the shower or entering and exiting the bathing area, we offer a great solution with our easy to use shower seats. The unique "L" shape provides the user with an extra surface to lift onto, making
entering the bathing area much easier. These seats are made to the highest quality and safety standards. Constructed from a heavy-duty 304-type 18-gauge stainless steel frame and support bar, these seats provide a reliable, sturdy
surface to transfer and rest on while in the bathing area.
Features:
- Unique "L" shape provides extra surface to lift onto
- Heavy duty 304-type 18-gauge stainless steel frame and support bar
- Can support up to 250lbs when properly installed
- Constant friction from the wall mounted bracket guides the "U-shaped" leg freely up and down, resulting in a low pressure spring action
- Extends only 6" from the wall when in the "up" or "closed" position - stays out of the way when not in use
- Compliant with ADA regulations when the mounting height of the lowered seat is 17" to 19" from the floor
- Proudly made in the USA

Models SSL & SSR - L-Shaped
Transfer Benches
Due to the differences in installation surfaces (tile, wood, sheet rock, etc), mounting hardware (bolts/screws/anchors) is not included.
These seats currently have a 3-4 week lead time to ship.
Seachrome All Stainless Steel
Institutional Transfer Seat
with Dual Yoke
If you're looking for a shower seat that can handle extensive daily institutional use, look no further. These L-shaped stainless steel transfer seats are specifically designed with a dual yoke to meet all federal specifications for institutional
applications, making them the perfect solution for prisons and other detention facilities, psychiatric hospitals, community shower facilities, or anyone looking for a shower seat with a sleek minimalist design. The stainless steel
seat surface and dual yoke mounting system provide exceptional stability so you can relax without worrying about falls or injury, and the convenient L-shape offers a larger transferring and resting area, helping you to shower independently.
Features:
- Allows those with mobility difficulties to transfer and shower independently or with less assistance
- Durable, easy to maintain 304-grade 14-gauge stainless steel resting surface
- Dual yoke mounting system and frame made from 304-grade 18-gauge stainless steel can support 250 lbs
- Meets all federal specifications for institutional applications and is ADA compliant when properly installed
- Constant friction from wall brackets makes it easy to fold up or down as needed
- Extends only 6" from wall when in the up or closed position
- View detailed specs for SLDY-320225 left hand or SRDY-320225 right hand
- Proudly made in the USA

Due to the differences in installation surfaces (tile, wood, sheet rock, etc), mounting hardware (bolts/screws/anchors) is not included.
These seats currently have a 3-4 week lead time to ship.
32" x 22.5" Stainless Steel Transfer
Seat with Dual Yoke:
Seachrome End & Rear Hung
Folding Tub Seats
If you are looking for an easy to use seat for your bathtub you've come to the right place. We offer a great solution for those who have limited
mobility, or disabilities that make bathing a challenge with our sturdy and reliable bath seats. These seats are made to the highest quality and safety standards with a comfortable seat and a sturdy support frame. Constructed from
a heavy-duty 304-type 18-gauge stainless steel frame and support bar, these seats provide a reliable surface to transfer and rest on while in the bathing area. Constant friction from the wall mounted bracket guides the "U-shaped" leg
freely up and down, resulting in a low pressure spring action. Extending only 6" from the wall when in the "up" or "closed" position, the seat stays out of the way when not in use.
When installed properly, these seats can support up to 250lbs and are compliant with ADA regulations when the mounting height of the lowered seat is 17" to 19" from the floor.
Due to the differences in installation surfaces (tile, wood, sheet rock, etc), mounting hardware (bolts/screws/anchors) is not included.
These seats currently have a 3-4 week lead time to ship.
Seachrome Rim-Mounted
Tub Transfer Seats
Bathing doesn't have to be scary and dangerous anymore. These seats are made to the highest quality and safety standards with a comfortable seat and a sturdy support frame. Constructed from a heavy-duty 304-type 18-gauge stainless steel
frame and support legs, these seats provide a reliable surface to rest on while in the bathing area. With these versatile, bench-style tub seats, users with limited mobility can move from a wheelchair into or out of a tub. The large
version features a central clamp that secures over the tub dam, so that half of the seat rests in the tub, and the other half rests on the bathroom floor. Alternatively, choose the smaller, more portable version for those with limited
room who still need safety in the bath. Adjustable, telescoping legs can raise the seat to accommodate a variety of tub dams or heights and swing down to keep the seat out of the way when not in use.
When installed properly, these seats can support up to 250lbs and are compliant with ADA regulations when the mounting height of the seat is 17" to 19" from the floor.
These seats currently have a 3-4 week lead time to ship.
Frequently Asked Questions
Q. "Who can benefit from these seats?"
A. The great thing about these seats is that just about everyone can benefit from having a shower to bathtub seat. However, there are those who specifically require assistance entering, leaving and/or while
bathing such as the elderly, those with a physical handicap or disability. Anyone who suffers from diseases like Parkinson's or Arthritis or those who've had a stroke and are left with limited mobility could greatly benefit from the
extra help in the shower or tub. Also persons who have suffered from a severe injury, recovering from surgery or who are in physical rehabilitation can find comfort in safe and easy bathing with one of these wonderful seats. Those
who need this kind of assistance can spend less time trying to uncomfortably manage a bath or shower and more time relaxing and enjoying their bathing. In addition using a transfer bench or shower seat can help to reduce the chances
of an injury while bathing since the user has a sturdy and reliable surface to rest on.
Q. "What is the difference between Phenolic (Teak or White) & Naugahyde? What is HDPE?"
A. Phenolic is a hard, dense, resin material that is light weight, and incredibly strong. This nonporous material does not splinter or require oiling and will not support the growth of bacteria. It is available
in either a White or Teak (wood-grain) surface finish. The Naugahyde used on these seats is a soft, synthetic, leather-like material that covers 2" of foam which is mounted to 1/2" marine plywood. HDPE stands for high-density polyethylene,
and is an extremely durable and strong thermoplastic.
Q. "What is the maximum weight capacity for these seats?"
A. When properly installed, all Seachrome shower seats have been designed and manufactured to support loads exceeding the downward pull requirements for Federal specifications FHA, VA, HUD, hospital codes,
and private construction. Bench style shower seats are rated for a maximum of 900 lbs. Bariatric Bench style seats with swing down legs are rated for a maximum of 1500 lbs. Compact Bench style shower seats are rated for a maximum of
250 lbs. Of course the actual "in use" load bearing capacity of any shower seat will be limited by the strength of its mounting surface and installation hardware. Seachrome recommends that shower seats be installed using 2" minimum
thickness "in wall" solid wood backing material with #10 x 2" stainless steel, phillips-head, sheet metal screws, or using a wall embedded, minimum 12 ga. (2.8mm) steel anchor plate with #10 x 24 stainless steel machine screws. Please
contact the factory for further mounting recommendations. Under no circumstances should any shower seat be mounted to drywall, sheetrock, plaster, fiberglass, acrylic or other similar "hollow" wall surfaces without appropriate wood
or steel backing material.
Q. "How do I tell which is right-hand side or left-hand side?"
A. For the "L" shaped transfer benches, the short side of the "L" will either be sticking out on your left side or your right side while you're sitting on the seat. So, if you were
sitting on the bench and the short side of the "L" was on your right side, you would be sitting on a right-hand side transfer seat.